30坪で建てる二世帯住宅の間取り!坪数を考えるプラン計画のポイントも解説

二世帯住宅は通常の戸建てと違って二世帯が住む家ですので、十分な生活空間を確保しなければいけません。
しかし、二世帯が住むにはどれくらいの広さが必要か疑問に思うところ。
そこで今回の記事は二世帯住宅の間取りについて下記のポイントでご紹介していきます。

・30坪で二世帯住宅を建てることができる

・二世帯住宅の間取りについて分かる

・40坪・50坪・60坪の間取りを紹介

・間取りづくりのポイントがわかる

・二世帯住宅の金額がわかる

目次

30坪で二世帯住宅は建てられる?間取りのプラン計画のポイント

30坪で二世帯住宅は建てられる?間取りのプラン計画のポイント

二世帯住宅は30坪でも建てられる

二世帯住宅は30坪でも建てられる

二世帯住宅は親世帯と子世帯が同居して住むため、一世帯が住む一戸建てと比べて家を大きくしないといけないと考えている方は多いのではないでしょうか。

住む人によって必要とする生活空間は様々です。
共用する部屋を設けるか、それとも両世帯の生活空間を完全に分離してしまうかなど、二世帯住宅は両世帯の生活スタイルを考えて間取りを決めていかなければいけません。

まず、間取りづくりの前に親世帯と子世帯の生活スタイルをはっきりさせて、その後にお互いの部屋はどれくらい必要か考えていくことになります。
二世帯住宅で30坪となると狭いと感じるかもしれませんが、二世帯が住む広さとして可能と言える広さです。

しかし、先ほども言いましたが、家の大きさは住む人によって違いますから、どれくらい部屋の広さが必要なのか各自計算して検討することが大事です。
では、どのようにして必要な部屋の広さを計算すればいいか下記にてお伝えしていきます。

坪数はどれくらい必要か計算・二世帯住宅の建坪の考え方

坪数はどれくらい必要か計算・二世帯住宅の建坪の考え方

まず、二世帯住宅の延べ床面積の目安を計算するために下記の計算式を用います。

【二世帯住宅の延べ床面積の計算式】
部屋の畳数×※1.6〜1.8÷2
※間取り係数:係数1.5〜2.0の数値でゆとりスペースの目安面積を算出

部屋の畳数は自分が必要とする居室の畳数を入れます。
例えば、子供世帯が必要な居室の畳数をリビング・ダイニング10畳、キッチン4畳、夫婦寝室6畳、子供部屋5畳と決めます。
上記で決めた居室を合計すると25畳となります。

二世帯住宅ならもう一世帯が必要とする居室の合計を算出します。
これを親世帯とした場合、リビング・ダイニング・キッチン10畳、寝室6畳で合計16畳となります。

居室の合計が出ましたら、畳数に間取り係数を掛けて半分に割ります。
子供世帯:25畳×1.6÷2=20坪
親世帯:16畳×1.6÷2=12.8坪

つまり、この世帯の二世帯住宅の必要な延べ床面積は32.8坪となります。

完全分離型の二世帯住宅を建てる場合、最低でも30坪は必要と言われています。
もう少しゆとりのある生活空間にしたいという方は、40坪ほどあるといいかもしれません。

二世帯住宅の建坪計算例

【子供世帯が必要な居室の畳数】
リビング・ダイニング10畳、キッチン4畳、夫婦寝室6畳、子供部屋5畳
合計:25畳

25畳×1.6÷2=20坪

【親世帯が必要な居室の畳数】
リビング・ダイニング・キッチン10畳、寝室6畳
合計:16畳

16畳×1.6÷2=12.8坪

【必要な建坪】
20坪(子供世帯)+12.8坪(親世帯)=32.8 坪

二世帯住宅の間取り計画に大切な建ぺい率と容積率とは?

建物の規制につかう建ぺい率 容積率ってなに?

必要な間取りの広さがわかりましたら、今度は建物を建てられる土地を探す必要があります。
建坪に収まる範囲の敷地を見つければいいと思われるかもしれませんが、土地には建ぺい率や容積率といった規定があり、規定の範囲内でしか建物を建てることはできません。

二世帯住宅を建てるための土地を探す時は、建ぺい率と容積率に注意し、どんな意味を示しているか理解しておきましょう。

【建ぺい率】
建ぺい率の公式

建ぺい率とは、敷地に対して建てられる建物の面積のことです。
敷地面積100㎡、建ぺい率60%とすると、建物の面積60㎡までの建物が建築できます。
計算式は下記のようになります。
建ぺい率(%)=建築面積÷敷地面積×100

【容積率】
容積率の公式

容積率とは、敷地面積に対して建てられる延べ床面積のことです。
敷地面積100㎡、容積率80%の敷地とすると、建てられる建物の延べ床面積は80㎡となります。
計算式は下記のようになります。
容積率(%)=延べ床面積÷敷地面積×100

先ほどの延べ床面積32.8坪(約108㎡)の二世帯住宅の場合、100㎡(約30坪)の敷地面積で容積率80%だと、規定する容積率を超えるため建てることはできません。

このように家を建てる土地には建物の面積(建築面積)と延べ床面積(1階の床面積+2階の床面積)の制限が決められているということを覚えておきましょう。

二世帯住宅の間取りスタイルは3つ

二世帯住宅の間取りスタイルは3つ

二世帯住宅の間取りは「完全分離型」「部分共用型」「完全同居型」の3つあります。
3つの間取りの違いを簡単に説明しますと下記にようになります。

・完全分離型:親世帯と子供世帯の生活する部屋を完全に分けてしまう間取り

・部分共用型:キッチンやお風呂など世帯同士部分的に部屋を共用する間取り

・完全同居型:親世帯と子供世帯の生活空間を分離せず同じ生活空間で暮らす間取り

二世帯住宅は一般的に通常の一戸建てと比べて費用が高くなると言われています。
費用が高くなる理由は、水回り設備の複数設置や部屋数が増えるなどが挙げられます。

このことから二世帯住宅の費用を抑えて建てる場合、親世帯と子供世帯の部屋を分けてしまうよりも共用する部屋を多くした方が費用を抑えることができます。

二世帯住宅を建てた人はどんな間取りを選んでいる?

当サイトでは二世帯住宅を建てた方にアンケートをとり、どんな間取りで建てたのか調査をしましした。
アンケートの結果は下記のグラフの通りです。

二世帯住宅を建てた人はどんな間取りを選んでいる?

ほとんどの方は部分共用型か完全分離型を選んでいます。

完全分離型のメリットは、同じ屋根の下にいながらも生活の干渉が少なくお互いのプライバシーを確保することができます。
完全分離型の注意するところは、生活の干渉がないことで親世帯と子世帯のコミュニケーションが希薄になってしまうことです。

今回のアンケートで48%の方が選ばれている部分共用型のメリットは、プライベート空間と世帯同士のコミュニケーションを適度に取れるということです。
また、共用する部分があることで、設備などを複数設置する必要がなく建築費用を抑えることができます。

部分共用型の間取りはどこまでを共用とするか人によって違い、親世帯と子供世帯の距離感も間取りに影響します。
お互いに気を使う負担が大きい間取りは、世帯同士の衝突トラブルに発展する可能性がありますので、間取り決めの時によく話し合って計画することが大事です。

二世帯住宅を建てる金額

二世帯住宅を建てる金額

一番多い回答は3000〜4000万円以内で回答率が40%です。
次に多いのが2000〜3000万円以内で34%の回答率でした。

今回のアンケート結果から二世帯住宅を建てる費用は、74%の方が2000〜4000万円以内で建てていることがわかりました。

30坪で建てる二世帯住宅の間取りプラン集

30坪で建てる二世帯住宅の間取りプラン集

30坪の二世帯住宅:完全同居型の間取り

30坪の二世帯住宅:完全同居型の間取り
1F部屋広さ
LDK18畳
寝室6畳
洋室6畳
浴室2畳
洗面室2畳
2F洋室6畳
洋室6畳
洋室6畳
納戸2畳

30坪の完全同居型の二世帯住宅なら十分な居室を確保することが可能です。
LDKやお風呂、トイレを共用で使用しますので、部屋数も増やすことができ、子供がいる世帯でも十分な広さを持った間取りにすることができます。

30坪の二世帯住宅:部分共用型の間取り

30坪の二世帯住宅:部分共用型の間取り
1F部屋広さ
LDK10畳
洋室4.5畳
和室6畳
浴室2畳
洗面室1.5畳
2FLDK14畳
洋室4.5畳
洋室6畳

お風呂や洗面室は共用で使い、プライベート空間はLDKを分離して確保する間取りです。
30坪の部分共用型の二世帯住宅は、完全同居と比べて居室の数やLDKの広さも多少減ることになりますが、生活するための居室の数と広さは確保できます。

30坪の二世帯住宅:完全分離型の間取り

30坪の二世帯住宅:完全分離型の間取り
1F部屋広さ
DK6畳
寝室4.5畳
洗面室2畳
浴室2畳
2FDK14畳
寝室6畳
洋室5畳
収納2畳

30坪でも完全分離型の間取りは可能です。
しかし、完全同居型や部分共用型と比べると確保できる居室の数や広さは限られてしまいます。

子供が多い世帯や子供が大きくなって一人部屋が必要になる世帯は、間取りの工夫が必要になります。
間取りを見て分かる通り、お風呂や洗面室を2箇所配置するとスペースを多く取られてしまうため、十分な広さを確保することができない場合は共用部分を増やすなど検討するといいでしょう。

二世帯住宅40坪・50坪・60坪・リフォームの間取りプラン集

40坪の二世帯住宅の間取り

40坪の二世帯住宅の間取り
1F部屋広さ
リビング12畳
キッチン5畳
洋室6畳
洗面室2畳
浴室2畳
2FLD10畳
キッチン4.5畳
洋室4.5畳
洋室4.5畳
洋室6畳
洗面室2畳
浴室2畳

40坪の完全分離型の間取りです。
40坪もあるとお風呂や洗面室などの水回り設備を複数配置しても居室の数や広さを十分確保することが可能です。

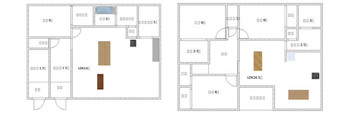
50坪の二世帯住宅の間取り

50坪の二世帯住宅の間取り
1F部屋広さ
LDK24畳
寝室8畳
収納2畳
洗面室2畳
浴室2畳
パントリー3畳
2FLDK16.5畳
寝室6畳
洋室6畳
洋室6畳
洗面室2.5畳
浴室2畳
収納2.5畳

50坪の完全分離型の間取りです。
居室の数や広さは十分にとれ、LDKも広くとることができます。
間取りが細かくなりやすい完全分離型の間取りでも50坪あればゆとりのある生活空間となるでしょう。

60坪の二世帯住宅の間取り

60坪の二世帯住宅の間取り
1F部屋広さ
LDK20畳
和室6畳
洋室6畳
洋室6畳
洗面室2畳
浴室2畳
収納3畳
2FLDK22畳
洋室8畳
洋室6畳
洋室6畳
洗面室3畳
浴室2畳

60坪の完全分離型の間取りです。
この広さになれば自分の好みに合わせて間取りをつくることが十分可能と言えます。

リフォームで二世帯住宅にする間取りプラン

リフォームで二世帯住宅にする間取りプラン

リフォームで二世帯住宅にする方も多くいます。
既存の建物を改築して二世帯にしますので、築年数が経っている住宅は強度を上げるために耐震工事を行っておくといいでしょう。

また、間取り変更をする時に注意することは、家の構造体である柱や梁をむやみやたらと抜かないことです。
柱などを抜くことで部屋を広くすることはできますが、その分建物の強度が下がってしまいます。
また、家のバランスも下がるため、もし構造体に関わる間取り変更を行う時は、建物の強度がどれくらいあるか、しっかりと構造計算をして工事を行いましょう。

二世帯住宅の間取りづくりのポイント

二世帯住宅の間取りづくりのポイント

スペースを広く取るなら共用を増やす

スペースを広く取るなら共用を増やす

大きい家を建てるのならいいのですが、スペースが限られている二世帯住宅の場合だと完全分離型はどうしても生活空間にゆとりがなくなります。
生活空間を完全に分けてしまえばプライバシーは確保できますが、生活するスペースを犠牲にしてしまうため、部屋が狭くなりストレスを抱えてしまう可能性もあります。

二世帯住宅の生活空間にゆとりを持たせるのなら、共用スペースを増やすことが大切です。
無理に部屋を分けるのではなく、お互いが暮らしやすい部屋の広さを確保できるように間取り計画をしましょう。

どうしても分けたいという方は、スペースを取るキッチンやお風呂を「メインのキッチンとミニキッチン」、「お風呂とシャワー室」などの組み合わせにしてスペースの節約をするのも方法の一つです。

階層を増やして延床面積を広げる

階層を増やして延床面積を広げる

敷地が限られている場合は、建てられる建物の建築面積も限られてしまいます。
敷地に建てられる範囲で二世帯住宅を建てるのは厳しいという場合は、三階建て以上を検討してみるのもいいでしょう。

三階建ては木造住宅でも建てることが可能ですので、階層を増やしても建築費用を抑えることができます。

三階建ての二世帯住宅を建てる時は、敷地の容積率に注意しましょう。
階層を増やして部屋を設けるということは、延べ床面積が増えるということです。

せっかく選んだ土地が容積率の規定範囲を超えてしまい部屋を増やすことができない、ということになりかねませんので、土地選びの時はしっかりと土地条件をチェックしましょう。

間取りづくりの失敗に多い!収納計画

間取りづくりの失敗に多い!収納計画

家の間取りの失敗で多いのが収納計画です。
収納スペースが少なくて物が入りきれず、物を床に置いてしまったり、あちこちに家具を置くことになってしまったりして部屋が狭い、という声もよく聞きます。

収納づくりのポイントは、所有する物の把握と普段からの整理する習慣、適切な位置に収納スペースを配置することです。
いらない物は捨てるということも大事になります。

収納する物も定期的に使用する物と時期的な物と分けて収納すること大切です。
掃除機や日用品などは定期的に使用する物なので、出し入れがしやすい場所に収納を配置します。

雛人形やクリスマスツリーなど時期的な物は使用する頻度も少ない物ですから、二階にある収納部屋や物をまとめて置ける納戸などに収納するといいでしょう。

駐車スペースをよく考える

駐車スペースをよく考える

狭小な土地に駐車スペースをつくるとなると建物の大きさにも影響してきますので、駐車スペースの確保は悩みどころです。

20坪以下の土地や長方形の土地の場合、駐車スペースは取りにくいためビルトインガレージという方法もあります。

しかし、ビルトインガレージは建築費用もかかり、耐震性の低下が懸念されるため建物の耐震性を上げなければいけません。

近年では車を持たない世帯も増えましたので、思い切って駐車スペースを作らないという選択もありますので、建物のスペースを優先したい方は検討してみてはいかがでしょうか。

間仕切りを減らして開放的に

間仕切りを減らして開放的に

間取りというとどうしても壁で仕切って部屋をつくるというイメージがあります。
しかし、壁で部屋を仕切る(間仕切り壁)間取りにしてしまうと圧迫感のある間取りとなってしまいます。

間仕切り壁が多い間取りは窮屈さを感じさせやすく、あまり開放的ではありません。
開放的な家にするには間仕切り壁を少なくすることが大切です。

例えばLDK(リビングダイニングキッチン)のように各部屋に間仕切りを設けないで配置することで一つの開放的な空間となります。
LDとKの間に間仕切りを設けた場合、部屋が分断されますので空間の開放さは欠けます。
しかし、間仕切りを設けることでプライバシーを保つことできるようになります。

このようにプライバシーの確保が必要な部分には間仕切り壁を立てて部屋を分断し、プライバシーを必要としない部分には間仕切りは立てずに部屋を一体にする、という考え方で間取りをつくるといいでしょう。

プライバシーを確保できる間取り計画

プライバシーを確保できる間取り計画

二世帯住宅のプライバシーは、生活の干渉の他に生活音も関係してきます。
二階から歩く音や子供がはしゃぐ音などが頻繁に伝わると一階に住む人は落ち着いて生活ができませんし、二階に住む人は一階に音が伝わらないようにと気を使う負担が大きくなります。

二世帯住宅を建てるのなら、生活音が伝わらないように防音と遮音の性能を高めておくことも重要です。
防音と遮音性能は、二階の床を二重床にする、防音シートを設置する、断熱材をいれるなどがあります。

また、水回り設備の場合は、配管類に吸音材を巻いて施工する、水回りの配置を上下階同じ位置にするなどの方法を検討するといいでしょう。

屋上を活用する

屋上を活用する

二世帯住宅は限られたスペースを効率良く使って間取りをつくることが大事です。
スペースを確保する際に屋上を利用するのも一つの方法になります。

屋上をルーフバルコニーにすれば眺望を楽しんだり、ガーデニングを楽しんだりと家族で楽しめる空間を生み出すことができます。

屋上で洗濯物を干すということもできますが、注意することがあります。
それは、家事動線を考えることです。

洗濯機が一階にあると洗濯物を干す時に屋上へ上がらなければいけませんし、洗濯物をしまうときも階段の上り下りが必要となります。

屋上に洗濯物を干すようでしたら、洗濯機の位置や洗濯物をしまう部屋のことなど家事動線を意識して間取りをつくりましょう。

まとめ

二世帯住宅で30坪というと狭いと感じるかもしれませんが、共用部分を増やすことで十分広さを持った居室をつくることはできます。
できればきっちりプライベートを確保したいという方も、少し部屋は狭くなりますが完全分離型の二世帯住宅を30坪で建てることは可能です。

注意することは、あまりに生活を分けることに重点を置いてしまい、部屋が窮屈になってしまうことです。
スペースの確保が難しいのなら、部分的に共用する部分共用型の二世帯住宅を検討するとゆとりのある部屋を確保することができます。

家づくりは「ハウスメーカー選び」が成功のカギ!
本気でおすすめできる無料サービスを紹介

「3回建てないと理想の家はできない」と言われるほど、難しい家づくり。

ただし、それは前のお話。今はインターネットが普及し、ハウスメーカーや工務店の口コミや住み心地が分かるようになりました。

はじめて家を建てるけど、大きい買い物だし絶対に失敗したくない・・・!

家づくりで失敗しないために、間取りやデザイン、資金計画などを相談する「ハウスメーカー選び」が最も重要です。

ハウスメーカー選びの段階で情報収集を怠ると、
「こんなはずじゃなかった!」「別のハウスメーカーと契約するべきだった」と後悔する可能性が高くなります。

自分のこだわりに合うハウスメーカーを探すために、何をどうすればいいの?

そんな悩みを抱えている方に向けて、おすすめの無料サービスを紹介します。

結論|自分に合うハウスメーカーと出会えるサービスはこの3つ!

ハウスメーカーの情報収集はカタログ一括請求とアドバイザー相談をするべし

>>カタログ一括請求の詳細を読む
>>無料相談サービスの詳細を読む

不動産のいろは編集部は、家を建てたい方に「カタログ一括請求」と「無料相談サービス」の利用をおすすめします!
それぞれのサービスの特徴を見てみましょう。

【家族とゆっくり話し合いたい人】カタログ一括請求がぴったり!

カタログ一括請求の流れ

「カタログ一括請求」ってご存知ですか?

家を建てたい地域やイメージ、希望の価格などを入力し、気になる会社にチェックをするだけで、その会社のカタログが自宅に届けられるというものです。

家づくりのカタログの一括請求のサイトはいくつかありますが、当サイトではLIFULL HOME’S注文住宅タウンライフ家づくりをおすすめしています。

LIFULL HOME’S注文住宅【気軽にカタログ請求したい方】

評価 ★★★★★

ライフルホームズのカタログ一括請求の紹介画像

たった一度の無料資料請求で注文住宅のカタログをまとめて取り寄せできる

  • 1,000万円台の建物価格からのお取り寄せ
  • ローコスト、平屋などのテーマ別のお取り寄せ
  • 建設予定地から全部のメーカーをまとめてお取り寄せ
  • 無料でまとめてお取り寄せ
  • 「はじめての家づくりノート!」もれなくプレゼントあり

タウンライフ家づくり【要望が固まっている・特殊】

評価 ★★★★★

タウンライフ家づくりの紹介画像

「まだよく決めていない人」~「細かい希望がある人」までカバー可能。本気の家づくりをするあなたに寄り添います。

  • 無料で複数社のカタログを取り寄せ可能
  • 利用満足度、知人に薦めたいサイト、使いやすさすべてでNo.1の堂々3冠
  • 複数の会社と商談する必要なく、細かい希望まで伝わる
  • 「成功する家づくり7つの法則」小冊子プレゼント

【アドバイザーの話が聞きたい人】無料相談サービスが最適!

「何も分からないから、家づくりの相談を誰かにしたい!」
「ハウスメーカー選びに失敗したくない!」

家づくりの初心者におすすめなのが、無料相談サービスの「スーモカウンター」です。
スーモカウンターは完全無料で専門アドバイザーに相談できますよ。

なんで無料なの?ちょっと怪しい気がする・・・。

スーモカウンターは、ハウスメーカーから紹介料(広告費や販売促進費)をもらっています。
この紹介料で運営しているので、お客様は完全無料で利用できるんです。

スーモカウンターの仕組み

ハウスメーカーからの営業は一切ありませんし、ご縁がなかった会社へのお断り代行も実施しているので、安心して利用できるサービスといえます。

スーモカウンター【”分からない”を解消したい人向け】

評価 ★★★★★

スーモカウンターの個別相談トップページ

家づくりの流れから資金計画まで相談できるから安心

  • あの有名なスーモの専門アドバイザーに相談できる!
  • 店舗で直接相談だけでなく、オンライン相談も可能。全て無料!
  • あなたの予算や要望に合わせてハウスメーカーを提案してくれる
  • 契約しなかったハウスメーカーのお断り電話を代行してくれる

この記事を書いた人

目次