「大阪でローコスト住宅を建てたい!」
「どのハウスメーカーと契約すればいいか分からないし、初めての家づくりだから不安・・・」
人生で最も高い買い物である家づくり。絶対に失敗したくないですよね。
インターネット上では、大手ハウスメーカーからローコスト住宅まで、様々な情報が出てくるので迷うのも仕方ありません。
この記事では、大阪に特化したローコスト住宅メーカー10社を紹介します。
大阪の土地相場や、家を建てる時の注意点も解説するので、ぜひ参考にしてください!
※大阪をはじめ、全国での施工に対応している大手ハウスメーカーのおすすめを知りたい方は、こちらの記事をご覧ください。
結論|大阪でローコスト住宅メーカーのおすすめはココ!
結論をいうと、大阪のローコスト住宅メーカーのおすすめは下記の2社です。
| アーキホームライフ | キャンディハウス |
|---|---|
![]() | ![]() |
| 参考価格 723万〜2,000万円 | 参考価格 768万〜1,500万円 |
| 坪単価 約45万〜70万円 | 坪単価 約40万円〜 |
| 全棟ZEH住宅に対応! 安いのに高品質住宅を建てられる | 20年以上の歴史あり! おしゃれなデザインが選べる |
| 詳細へ▽ | 詳細へ▽ |
両社ともに低価格にもかかわらず、高性能住宅を建てることができるハウスメーカーです。
2階建ての他、平屋やZEH住宅を建てられるので、幅広い方におすすめです。
大阪のローコスト住宅メーカー9選

さっそく大阪のおすすめローコスト住宅メーカーを紹介します。
各社のおすすめポイントを3つに絞って紹介し、口コミと評判も掲載しています。
「家を建てたいけど、何から始めたらいいか分からない・・・」と悩んでいる方もいますよね。
そんな方は、専門アドバイザーに相談したり、カタログを比較・検討するところから始めてみましょう。

株式会社リクルートが運営するスーモカウンターは、注文住宅やマンション購入の悩みを無料で相談できます。
知識と経験のある専門アドバイザーに相談できるので、はじめて家を作る人に最適ですよ。
「いきなり人と話すのはちょっと・・・」という方は、自宅で複数のハウスメーカーカタログを比較できるLIFULL HOME’Sがおすすめです。
LIFULL HOME’Sは不動産業界最大級の情報を掲載しているため、地域密着型のハウスメーカーのカタログも請求できちゃいます。
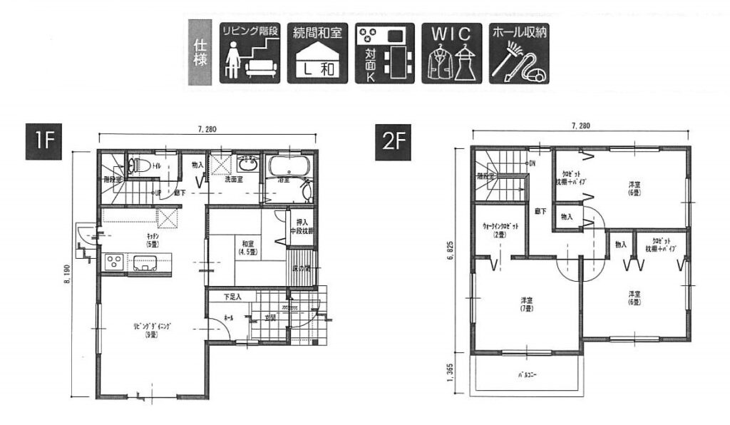
アーキホームライフ

- 住宅性能等級の主要8項目において最高等級を獲得
- 自由設計だから、内装も外装もアレンジ自由
- 全棟ZEH住宅に対応
大阪のローコスト住宅メーカー「アーキホームライフ」は、「すべての人にいい家を」というコンセプトのもと、高品質な住宅をできる限り安い値段で提供しています。
予算は723万円からと、驚きの低価格が特徴です。
アーキホームライフは自然の力を活用する考え方「パッシブデザイン」を採用しています。
光や熱、風といった自然の力を使って快適な住宅を作っています。

全棟ZEH仕様なうえに、長期優良住宅仕様です。そのため、耐震性や断熱性といった性能面は、ローコスト住宅ハウスメーカーの中でもトップレベルと言えるでしょう。
実はローコスト住宅の中には、高性能住宅を提供しているハウスメーカーが沢山あります!
ハウスメーカー選びは比較検討が重要です。気になるハウスメーカーのカタログを一括請求し、ご家族で話し合いながら検討してみてはいかがでしょうか?
\ 最大12社!アーキホームライフだけでもOK /
アーキホームライフの評判
>>LIFULL HOME’Sでカタログを請求する
>>【PR】スーモカウンターの無料相談を利用する
アーキホームライフの会社情報
| 会社名 | 株式会社アーキホームライフ |
|---|---|
| 本社所在地 | 〒620-0062 京都府福知山市和久市町123 |
| 設立 | 2005年 |
| 予算 | 723万円〜 |
| 電話番号 | 0120-49-0358 |
| 営業時間 | 10:00~19:00(毎週水曜日を除く) |
| 公式サイトURL | https://homelife.jp/ |
キャンディハウス

- 様々なコストカットの努力で、ローコスト住宅を実現
- 北欧風やモダンなど、プランごとに選べる住宅タイプ
- そのまますぐに住める設備が標準仕様
1996年に個人で創業されてから、2024年現在までに28年の歴史がある大阪のローコスト住宅メーカー、それが「キャンディハウス」です。
768万円の予算からマイホームを建てられるので、なるべく住宅価格を抑えたい方にもおすすめ。
具体的な間取りや本体価格などを見てみましょう。


施工面積:32坪、建物本体価格:1,429万円(税込)


施工面積:26.5坪、建物本体価格:1,221万円(税込)


施工面積:23.75坪、建物本体価格:1,095万円(税込)
「安すぎて設備が不安!」と感じている方もいますよね。キャンディハウスの標準仕様は下記の通りです。
- 断熱ペアガラスサッシ
- システムバス
- システムキッチン
- 洗面化粧台
- シャワートイレ
- 追い焚き機能付きガス給湯器
- 全居室照明器具
- シューズボックス
- テレビ配線
- エアコン専用コンセント
- 電話配線
- 網戸一式
- 24時間換気システム etc…
高品質設備を厳選し採用しているそうです。
お客様がそのまま住めるように標準仕様を整えているので、スピーディに新居へ引っ越ししたい方などにおすすめですよ。
大阪には数多くのローコスト住宅ハウスメーカーがあります。
家づくりで一番失敗してはいけないことは「ハウスメーカー選び」です。複数社の情報を効率よく比較できるように、カタログを一括請求してみてはいかがでしょうか。
\ 最大12社!キャンディハウスだけでもOK /
キャンディハウスの評判
キャンディハウスで実際に購入しました、ローンに不安がありましたが担当の方が頑張ってくれ資金計画や土地探しも親身になって考えてくださり家族一同大変満足しております(^^♪ありがとうございました
引用先:マンションコミュニティ
一昨年にキャンディハウスさんでおうちを建てました。
少し前にトイレのドアの閉まりが悪くなってしまった(子供がバンバン閉めて遊ぶからだと思いますが?)ので、営業の担当の方にご連絡しました。
そしたら近くを通るので寄って見ますよーといって来て下さいました。そしてドアの調整をしてくれましたよ!
そして何か気になることないですか?と聞かれたので、クロスの繋ぎ目が開いてきているといったら、その場で直してくれました。
うちの担当者の方は、些細なことでも連絡をしたら答えてくれるし、対応もしてくれるのですごく頼りになるので良かったなーと主人と話してます^_^引用先:e戸建て
キャンディハウスの会社情報
| 会社名 | キャンディハウス |
|---|---|
| 本社所在地 | 大阪府和泉市はつが野一丁目 44-5 |
| 設立 | 1996年 |
| 予算 | 768万円〜 |
| 電話番号 | 和泉店:0120-322-323 貝塚店:0800-1111-370 大阪狭山店::072-349-3350 イオン藤井寺店::072-959-6577 |
| 営業時間 | ー |
| 公式サイトURL | https://www.ichibe.co.jp/candy-house/ |
Ideal Home(アイディールホーム)

- 初めて展示場を作った時から輸入住宅を作り続けている
- 必要な資材を直輸入。海外ブランドも豊富に取り扱う
- アンティークスタイルなど、様々なテイストの輸入住宅を展開
大阪で1,000万円台から輸入住宅を建てられるのが、「Ideal Home(アイディールホーム)」です。
輸入住宅とは、海外の設計思想を取り入れた住宅のこと。資材やパッケージを輸入し、国内で建築しています。
「輸入住宅は高いから、ローコスト住宅じゃ無理かも」と考えている方といると思いますが、メーカーを選べばローコスト住宅でも輸入住宅は建てられるので、ご安心ください!
アイディールホームは住宅の様子が分かる動画を配信しています。文章よりも、そちらの方がイメージが湧きやすいでしょう。
大阪でローコスト住宅+輸入住宅を取り扱っているのはアイディールホームのみです。
「輸入住宅を絶対に建てたい!」という方は、アイディールホームを検討してみてはいかがでしょうか。
家づくりで一番失敗してはいけないことは「ハウスメーカー選び」です。
複数社の情報を効率よく比較できるように、カタログを一括請求してみてはいかがでしょうか。
\ 最大12社!アイディールホームだけでもOK /
Ideal Homeの評判
S.M.お家を建て引越しして1ヶ月。
毎日楽しい嬉しい可愛いが溢れてウエストビルドさんで施工して貰い本当に良かったなぁと思っています。私の家への気持ちや家の中にしたい事を汲んでくださり、思い以上の家が出来たと思っています。
会社の雰囲気や人柄 仕事の丁寧さ 職人さんの皆様の気さくさ、おもてなし。
猫様達が私とフィーリングがとても合い、打ち合わせの毎月も決めていくのが楽しくワクワクのままで家が出来上がりました。
私の夢が叶い周りの人達からも褒めて貰える家になりました。褒めてばかりですが本当に私は嫌な事が無かったんです。
引用:Googleマップ



こちらで家を建てていただいて早2年、満足度がますます上がってます!
「注文住宅」と聞くとハードルが高そうですが、こちらではとても丁寧に、熱心に、親切にしていただいて、よくわかっていない我々にも、本当に優しい工務店であると思いました。
gentle&honestを掲げられている、その通りでした。
思い切って分譲マンションからの住み替えを決意して本当に良かったと思わせてくれます。
可愛く、カッコ良く、機能的で好みの家を検討している皆さまは、ぜひ、どうぞ!
引用:Googleマップ
>>LIFULL HOME’Sでカタログを一括請求する
>>【PR】スーモカウンターの無料相談を利用する
Ideal Homeの会社情報
| 会社名 | 株式会社 ウエストビルド/Ideal Home |
|---|---|
| 本社所在地 | 〒536-0022 大阪市城東区永田3-12-1 |
| 設立 | 1998年 |
| 予算 | 1,000万円台〜 |
| 電話番号 | 0120-138-152 |
| 営業時間 | 9:00~18:00 |
| 公式サイトURL | https://www.westbuild.com/ |
Vintage Homes(ヴィンテージホームズ)


- 代表取締役が自ら設計を担当
- 完全自由設計なので、自分好みにカスタマイズできる
- 設計から施工までを自社一貫で対応
Vintage Homes(ヴィンテージホームズ)は、完全注文住宅のハウスメーカー。
輸入住宅をローコストで販売する住宅メーカーであり、標準仕様は坪単価58万円〜の価格設定です。
注文住宅のラインナップは下記の通りです。
サーファーズスタイル


西海岸スタイルのデザイン。
ガレージハウス


ガレージ付きの住宅プラン。
モダン×アメリカンなデザインがポイント!
フレンチスタイル


白やグレーを基調としたデザインを採用。
ヴィンテージホームズは、海外の住宅設計を取り入れている輸入住宅を手掛けています。
「北欧風のデザイン住宅を建てたい!」
「和風ではなく、洋風の家に憧れている」
といった方にぴったりのハウスメーカーと言えるでしょう。
さらにヴィンテージホームズは、建物10年保証(瑕疵担保責任保険)や建設工事保険、アフターメンテナンスといったサポート体制が整っていますよ。
家づくりで一番失敗してはいけないことは「ハウスメーカー選び」です。
複数社の情報を効率よく比較できるように、カタログを一括請求してみてはいかがでしょうか。
\ 最大12社!ヴィンテージホームズだけもOK /
ヴィンテージホームズの評判
ヴィンテージホームズのYouTubeには、お客様インタビュー動画もあります。
お時間がある方は、ぜひご覧ください。
>>LIFULL HOME’Sでカタログを一括請求する
>>【PR】スーモカウンターの無料相談を利用する
ヴィンテージホームズの会社情報
| 会社名 | 株式会社アーキホームライフ |
|---|---|
| 本社所在地 | 〒547-0005 大阪府大阪市平野区加美西1丁目13-47 |
| 設立 | 2013年 |
| 予算 | 1,000万円〜 |
| 電話番号 | 0120-397-037 |
| 営業時間 | 10:00~18:00 (定休日:火、水曜日) |
| 公式サイトURL | https://www.vintage-homes.co.jp/ |
ゼロホーム


次に紹介するのは、創立が1981年という老舗のローコスト住宅メーカー「ゼロホーム」です。ゼロホームは、大阪だけではなく全国各地でのローコスト住宅に対応しているハウスメーカーです。
- 長期優良住宅を1,000万円台から建てられる
- コンセプトは「100年住宅」
- 住宅性能評価の7項目を最高等級でクリア
ゼロホームの評判
ゼロホームで家を建てました。
営業担当が誠実で信用出来た。(尼崎展示場)
建築中は何度も足を運びチェックして指摘修正をしてもらわないと駄目な箇所があった。
任せきりでは駄目(大手ハウスメーカーも同じだが)、ただ指摘するときちんと修正してくれた。
デザイン性をもとめるならこちらから提案しないと駄目(デザイナーなど居ない)
完成した家は非常に満足している。引用先:マンションコミュニティ
丸8年が建ちましたが、不満なところは何もありません。
後悔しているのは、床暖房をもう少し広めにしておいた方が良かったぐらいです。天窓をつけましたが、とても明るくて勧めていただいてよかったです。メンテナンスの方は、とても親切で、少し不安なことを伝えるとすぐに来てくれます。
左京区の知り合いにも勧め建てられて満足されています。オーナー企業から京阪グループになられましたが、話を聞くと細部にコンプライアンスが求められて、逆に安心感も増しました。引用先:マンションコミュニティ


>>LIFULL HOME’Sでカタログを一括請求する
>>【PR】スーモカウンターの無料相談を利用する
ゼロホームの会社情報
| 会社名 | ゼロホーム(株式会社ゼロ・コーポレーション) |
|---|---|
| 本社所在地 | 〒604-0924 京都市中京区河原町二条西南角 河原町二条ビル3F |
| 設立 | 1981年 |
| 予算 | 1,000万円台〜 |
| 電話番号 | 075-221-4400 |
| 営業時間 | 10:00~18:00 |
| 公式サイトURL | https://zerohome.jp/ |
ウッドハウス


次に紹介する大阪のローコスト住宅メーカーは、「ウッドハウス」です。1993年に創業された歴史あるローコスト住宅メーカーです。
- 諸経費や各種設備も含めた「フルコミの家」を販売
- 玄関ドアのデザインなど、複数の選択肢から自分好みにチョイス
- 各種申請や事務処理も全て代行
>>LIFULL HOME’Sでカタログを一括請求する
>>【PR】スーモカウンターの無料相談を利用する
ウッドハウスの会社情報
| 会社名 | 株式会社アクティブ ウッドハウス事業部 |
|---|---|
| 本社所在地 | 大阪府東大阪市長田東2-2-3 長田エストビル6F |
| 設立 | 1993年 |
| 予算 | ※公式サイトには記載なし |
| 電話番号 | 06-6748-9090 |
| 営業時間 | 723万円〜 |
| 公式サイトURL | http://www.woodhouse.osaka.jp/ |
匠工務店


次に紹介する大阪のローコスト住宅メーカーは、「匠工務店」です。1958年から続く伝統と歴史のある工務店で、狭小住宅や二世帯住宅など、様々な形式の家づくりに対応しています。
- 契約者の予算に合わせたオーダーメイドのプランを提案
- 技術力に自信あり!ライフスタイルに合わせた住宅設計
- 建築事務所を兼ねた工務店なので、設計から施工まで自社一貫
匠工務店の評判(※リフォーム)
【大阪市東住吉区 K様】
他社に比べて安かったことは大きな理由ですが、それだけではなく、技術的また会社的に信頼できると感じたからです。安くても、しっかりしていない会社には頼みたくなかったので。
>>LIFULL HOME’Sでカタログを一括請求する
>>【PR】スーモカウンターの無料相談を利用する
匠工務店の会社情報
| 会社名 | 有限会社匠工務店 一級建築士事務所 |
|---|---|
| 本社所在地 | 大阪府大阪市住吉区遠里小野6丁目8-3 |
| 設立 | 1958年 |
| 予算 | 1,000万円台〜 |
| 電話番号 | 06-6693-3355 |
| 営業時間 | 10:00〜19:00 |
| 公式サイトURL | http://www.takumi-archi.com/ |
まもる工務店


次に紹介する「まもる工務店」は、とにかく親切な対応がウリのローコスト住宅メーカー。問い合わせや相談に来た方に対して無理な営業を行わないことも、好印象のポイントです。
- 各種経費を抑えることで、ローコスト住宅を実現
- 標準仕様だけでもそのまま住める家づくり
- 「売り込まない」がモットーなので、気軽に相談できる
>>LIFULL HOME’Sでカタログを一括請求する
>>【PR】スーモカウンターの無料相談を利用する
まもる工務店の会社情報
| 会社名 | 株式会社まもる工務店 |
|---|---|
| 本社所在地 | 〒547-0012 大阪市平野区長吉六反1-3-22 |
| 設立 | 1977年 |
| 予算 | ※公式サイトには記載なし |
| 電話番号 | 06-6790-4066 |
| 営業時間 | 723万円〜 |
木づかい 家工房


大阪市で唯一の”村”にある小さな工務店が、「木づかい 家工房」です。「自然を感じ、家族の気配を感じられる家」を目指して、地元工務店ならではのサポートでローコスト住宅を提供しています。
- 『木』を大切にした温かみのある家づくり
- 小さな工務店だからこそできる、きめ細やかなサポート
- 長期優良住宅に対応
>>LIFULL HOME’Sでカタログを一括請求する
>>【PR】スーモカウンターの無料相談を利用する
木づかい家工房の会社情報
| 会社名 | 株式会社 家工房 |
|---|---|
| 本社所在地 | 大阪府南河内郡千早赤阪村小吹68-95 |
| 設立 | 2014年 |
| 予算 | ※公式サイトには記載なし |
| 電話番号 | 0721-72-0177 |
| 営業時間 | 8:00~18:00 |
| 公式サイトURL | http://ie-koubou.co.jp/ |
【坪単価一覧】大阪で家を建てるなら、土地価格・公示価格をチェックしよう


大阪でローコスト住宅を建てようと思ったとき、実際のところ予算はいくらぐらい用意すればいいのでしょうか?こちらでは、大阪でローコスト住宅を建てる際の価格の目安について解説してまいります。
まずは大阪の土地価格の相場と目安を知ろう


マイホームを建てる際の金額の目安を知るためには、まずそのエリアの土地価格の相場を理解しなければなりません。
以下に、大阪の人気エリアの土地価格を坪単価で表にまとめましたので、こちらをご覧ください。
い。
大阪府の主要エリア坪単価一覧
| 地域名 | 坪単価平均/坪 | 公示地価平均/㎡ |
|---|---|---|
| 大阪中央区 | 1118万8963 円 | 338万4667 円 |
| 大阪市北区 | 1108万5544 円 | 335万3382 円 |
| 大阪市西区 | 436万5519 円 | 132万0571 円 |
| 大阪市福島区 | 238万3027 円 | 72万0867 円 |
| 大阪市天王寺区 | 228万5396 円 | 69万1333 円 |
| 大阪市阿倍野区 | 211万6971 円 | 64万0385 円 |
| 大阪市浪速区 | 208万2917 円 | 63万0083 円 |
| 大阪市淀川区 | 130万8788 円 | 39万5909 円 |
| 大阪市都島区 | 129万6767 円 | 39万2273 円 |
| 吹田市 | 98万2006 円 | 29万7057 円 |
| 大阪市東成区 | 92万3304 円 | 27万9300 円 |
| 大阪市住吉区 | 92万1998 円 | 27万8905 円 |
| 大阪市港区 | 90万2006 円 | 27万2857 円 |
| 大阪市城東区 | 89万6601 円 | 27万1222 円 |
| 豊中市 | 88万2785 円 | 26万7043 円 |
| 大阪市東淀川区 | 82万7900 円 | 25万0440 円 |
| 大阪市旭区 | 81万0170 円 | 24万5077 円 |
| 大阪市東住吉区 | 79万8735 円 | 24万1618 円 |
| 大阪市鶴見区 | 78万3883 円 | 23万7125 円 |
| 堺市北区 | 77万9655 円 | 23万5846 円 |
大阪府の人気駅の坪単価一覧
| 地域名 | 坪単価平均/坪 | 公示地価平均/㎡ |
|---|---|---|
| 高槻 | 61万0025円 | 18万4532円 |
| 千里丘 | 114万0495円 | 34万5000円 |
| 茨木 | 219万8347円 | 66万5000円 |
| 樟葉 | 176万5289円 | 53万4000円 |
| 香里園 | 138万8429円 | 42万円 |
| 緑地公園 | 175万2066円 | 53万円 |
| 千里山 | 152万0661円 | 46万円 |
いかがでしょうか。あなたが希望するエリアの土地価格は載っていましたか?各エリアの土地価格の相場や目安は、SUUMOで調べられます。気になる方はご自分の希望エリアの土地価格を調べてみてくださいね。
大阪府枚方市でローコスト住宅を建てる際の価格の目安


先ほど紹介した大阪の土地価格相場において、最も値段が安かった大阪府枚方市を例に、「ローコスト住宅をいくらで建てられるのか」というモデルプランを計算してみましょう。
計算に使用する条件は、次の通り。
「723万円から家を建てられる」と公式サイトに記載のあった、アーキホームライフを例に紹介します。
メーカー:アーキホームライフ
土地:25坪
住宅の床面積:20坪
この条件だと、土地価格と住宅価格はそれぞれ次の表の通りになります。
| 広さ | 価格 | |
|---|---|---|
| 土地 | 25坪 | 1,152万円 |
| 住宅 | 20坪 | 723万円 |
土地価格と住宅価格を合計すると、結果は1,875万円!
非常に簡単な計算なのであくまで目安ではありますが、実際に2,000万円を切る値段で土地とマイホームを購入できることがわかりました。
大阪でローコスト住宅を建てる際の注意点


最後に、大阪でローコスト住宅を建てる際に、覚えておきたい注意点を紹介します。
狭い土地が多いので、狭小住宅になるかも


日本の3大都市の1つである大阪。
都心部になればなるほど、予算的にも立地的にも、土地は狭くなってしまう恐れがあります。
土地が狭ければ建てられる家の広さも限られてくるので、大阪でローコスト住宅を建てる際は狭小住宅になってしまうことも視野に入れておかなければなりません。
どうしても広い家に住みたい方は、都心部ではなく郊外や駅から離れた地域でローコスト住宅を建てるようにしましょう。
隣家との距離が近いため、騒音やにおいに注意する必要がある


大阪でローコスト住宅を建てる際の2つめの注意点として、隣家との距離が近いため、騒音やにおいに気をつける必要がある点が挙げられます。
とくにローコスト住宅の場合は住宅価格が安いため、あまり防音性能がしっかりしていないケースもあります。住宅の防音性能を重視したい方は、問い合わせの際にローコスト住宅メーカーの担当者へ確認してみるのがいいでしょう。
メーカーの施工対応エリアを確認しよう


3つめの注意点は、ローコスト住宅メーカーの施工対応エリアを確認しておくことです。それぞれのメーカーには対応エリアがあり、エリア外だと出張料金を取られたり、そもそも施工に応じてくれないこともあります。
「デザインや性能も気に入ったし、このローコスト住宅メーカーがいいかも!」と気持ちが盛り上がっても、施工エリア外で対応してもらえなければ意味がありません。気になるローコスト住宅メーカーが見つかったら、まずは対応エリアを確認するようにしましょう。
まとめ
今回の記事では、大阪でおすすめのローコスト住宅メーカーを10社紹介しました。それぞれのローコスト住宅メーカーに異なる特徴がありましたが、複数社に共通して「コストカットの努力を行っている」というポイントがありましたね。
ローコスト住宅が安い秘密は、メーカー側の様々な企業努力にあります。自社一貫の施工で中間マージンを削減したり、無駄な広告宣伝費を削ったり、いろいろなコストカットの取り組みにより低価格な家づくりを実現しています。
今回の記事で紹介した地域密着型のローコスト住宅メーカーは、どれも顧客に対して親身になってサポートしてくれるところばかり。興味のあるローコスト住宅メーカーが見つかったら、ぜひお気軽に資料請求してみてくださいね。
家づくりは「ハウスメーカー選び」が成功のカギ!
本気でおすすめできる無料サービスを紹介
「3回建てないと理想の家はできない」と言われるほど、難しい家づくり。
ただし、それは前のお話。今はインターネットが普及し、ハウスメーカーや工務店の口コミや住み心地が分かるようになりました。
はじめて家を建てるけど、大きい買い物だし絶対に失敗したくない・・・!
家づくりで失敗しないために、間取りやデザイン、資金計画などを相談する「ハウスメーカー選び」が最も重要です。
ハウスメーカー選びの段階で情報収集を怠ると、
「こんなはずじゃなかった!」「別のハウスメーカーと契約するべきだった」と後悔する可能性が高くなります。
自分のこだわりに合うハウスメーカーを探すために、何をどうすればいいの?
そんな悩みを抱えている方に向けて、おすすめの無料サービスを紹介します。
結論|自分に合うハウスメーカーと出会えるサービスはこの3つ!


>>カタログ一括請求の詳細を読む
>>無料相談サービスの詳細を読む
不動産のいろは編集部は、家を建てたい方に「カタログ一括請求」と「無料相談サービス」の利用をおすすめします!
それぞれのサービスの特徴を見てみましょう。
【家族とゆっくり話し合いたい人】カタログ一括請求がぴったり!


「カタログ一括請求」ってご存知ですか?
家を建てたい地域やイメージ、希望の価格などを入力し、気になる会社にチェックをするだけで、その会社のカタログが自宅に届けられるというものです。
家づくりのカタログの一括請求のサイトはいくつかありますが、当サイトではLIFULL HOME’S注文住宅とタウンライフ家づくりをおすすめしています。
LIFULL HOME’S注文住宅【気軽にカタログ請求したい方】
評価 ★★★★★


たった一度の無料資料請求で注文住宅のカタログをまとめて取り寄せできる
- 1,000万円台の建物価格からのお取り寄せ
- ローコスト、平屋などのテーマ別のお取り寄せ
- 建設予定地から全部のメーカーをまとめてお取り寄せ
- 無料でまとめてお取り寄せ
- 「はじめての家づくりノート!」もれなくプレゼントあり
タウンライフ家づくり【要望が固まっている・特殊】
評価 ★★★★★


「まだよく決めていない人」~「細かい希望がある人」までカバー可能。本気の家づくりをするあなたに寄り添います。
- 無料で複数社のカタログを取り寄せ可能
- 利用満足度、知人に薦めたいサイト、使いやすさすべてでNo.1の堂々3冠
- 複数の会社と商談する必要なく、細かい希望まで伝わる
- 「成功する家づくり7つの法則」小冊子プレゼント
【アドバイザーの話が聞きたい人】無料相談サービスが最適!
「何も分からないから、家づくりの相談を誰かにしたい!」
「ハウスメーカー選びに失敗したくない!」
家づくりの初心者におすすめなのが、無料相談サービスの「スーモカウンター」です。
スーモカウンターは完全無料で専門アドバイザーに相談できますよ。
なんで無料なの?ちょっと怪しい気がする・・・。
スーモカウンターは、ハウスメーカーから紹介料(広告費や販売促進費)をもらっています。
この紹介料で運営しているので、お客様は完全無料で利用できるんです。


ハウスメーカーからの営業は一切ありませんし、ご縁がなかった会社へのお断り代行も実施しているので、安心して利用できるサービスといえます。
スーモカウンター【”分からない”を解消したい人向け】
評価 ★★★★★


家づくりの流れから資金計画まで相談できるから安心
- あの有名なスーモの専門アドバイザーに相談できる!
- 店舗で直接相談だけでなく、オンライン相談も可能。全て無料!
- あなたの予算や要望に合わせてハウスメーカーを提案してくれる
- 契約しなかったハウスメーカーのお断り電話を代行してくれる



